BkLOKKENTOREN

projecten > ontwerpend onderzoek > PlanMUUR

PLAN mca-01: PlanMUUR, prijsvraaginzending WoenselWestWedstrijd, NOMINATIE

PLAnMUUR geeft een commentaar op de stedenbouwkundige situatie: met het beeldmerk van een MUUR wordt de grens en overgang van de plek gemarkeerd. Als object is PLAnMUUR ambivalent, het wil uitdrukkelijk niet eenduidig zijn: slechts drie zijden roepen een beeld van een MUUR op, waarmee de MUUR een decorstuk, een teken voor de wijk wordt. De vierde zijde (niet gericht naar Woensel-West) geeft met zijn kale en anonieme karakter uitdrukking aan de overgang naar de grote belendende blokken en rondweg. Deze zijde is uitgevoerd in beton en zal bij het binnenkomen van de wijk de sokkel in beeld verhogen zodat de de attentiewaarde van de verbindende factor (de sokkel) aan het begin van het “kralensnoer” toeneemt. De drie andere zijdes laten in contrast hiermee een levendig en kleurrijk beeld zien als teken van en naar de wijk. De grote schaal van de “stenen” in de gevel leiden tot een vervreemdend effect en maken het object tot een markante verschijning.

Met het maximale overstek en de maximale hoogte krijgt de MUUR zijn betekenis in de straat en wordt de ruimtelijke werking en signaalfunctie vergroot: in het perspectief van de straat is het zo als eindpunt en “laatste kraal in het snoer” goed zichtbaar. Zonder MUUR is er geen poort en het grote overstek zal ook de MUUR met zijn poortwerking voor de buurt benadrukken. 

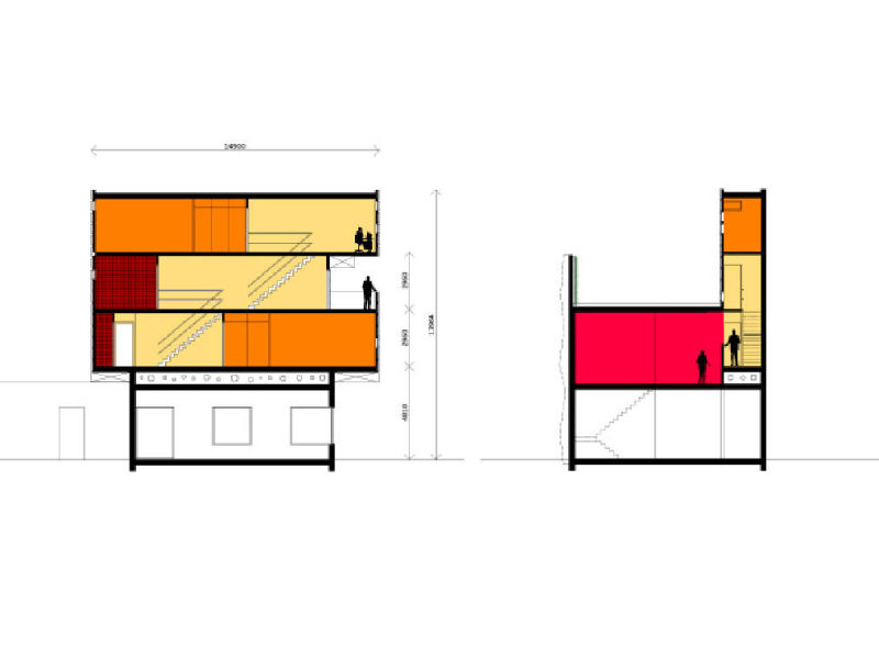
De MUUR bestaat uit (bouw)stenen en is niet compleet, er missen een paar stenen! Is de MUUR onvoltooid of in verval? Als onvoltooid object is PLAnMUUR een metafoor voor de wijk in opbouw. De (bouw-)stenen zijn verschillend en veelkleurig en geven uitdrukking aan de smeltkroes van culturen in de wijk en het de levendige en kleurrijke karakter van Woensel-West. De naar de wijk gekeerde gevels willen een feestelijk decorstuk zijn voor de wijk. De rode basiskleur met af een toe een rood verlichte “steen” van de in de gevel geïntegreerde lichtbakken (zie “detail wandopbouw”) is een knipoog naar de achterliggende functie van het Baekelandplein (“red light district”). 

Een MUUR is echter ook een scheiding en als object in verval staat de muur symbool voor het slechten van barrières en de wens om segregatie en uitsluiting uit te bannen. Een MUUR is ook iets om te overwinnen, om op te klimmen. In de MUUR komt dit tot uitdrukking door de doorlopende routing naar boven, naar het hoogtepunt, het uitzicht, de nieuwsgierigheid van "wat zit er achter de muur?" en “wat is het uitzicht naar Woensel-West?”

PLAnMUUR wil daarmee uitdrukkelijk ook een gebouw zijn. Het bevat de meest fundamentele vorm van huisvesting: een WONING. De uitgesproken verhoudingen van het gebouw maken van het object niet alleen een "landmark" maar van de woning ook een bijzonderheid. Bij het idee van een poort en grensmuur valt te denken aan een woning voor een eigentijdse poortwachter in de vorm van een buurtbeheerder of wijkagent. De activiteiten in de sokkel kunnen hierbij eventueel aansluiten. De woning is echter zo algemeen dat deze ook als startersappartement (of zelfs een bed-and-breakfast gelegenheid met twee kamers) ingezet kan worden. 

PLAnMUUR is eenvoudig met conventionele middelen te maken. Door het hoogteverschil in de eerste verdieping is het grote overstek eenvoudig te realiseren via betonnen of stalen consoles. In de hoge opbouw wordt de rechtergevel en de eerste verdiepingsvloer in beton uitgevoerd terwijl de overige gevels, vloeren en dak in houtskeletbouw (zie “detail wandopbouw”) opgetrokken kunnen worden. De blinde zijgevel van de aangrenzende bebouwing is een hangende tuin als oosterse referentie aansluitend op het beeldmerk van de belending. De beplanting zal het terras een aangename verblijfskwaliteit geven..

© copyright 2026  maurits cobben architect.enbureau           privacystatement          algemene voorwaarden


















































Drag & Drop Website Builder